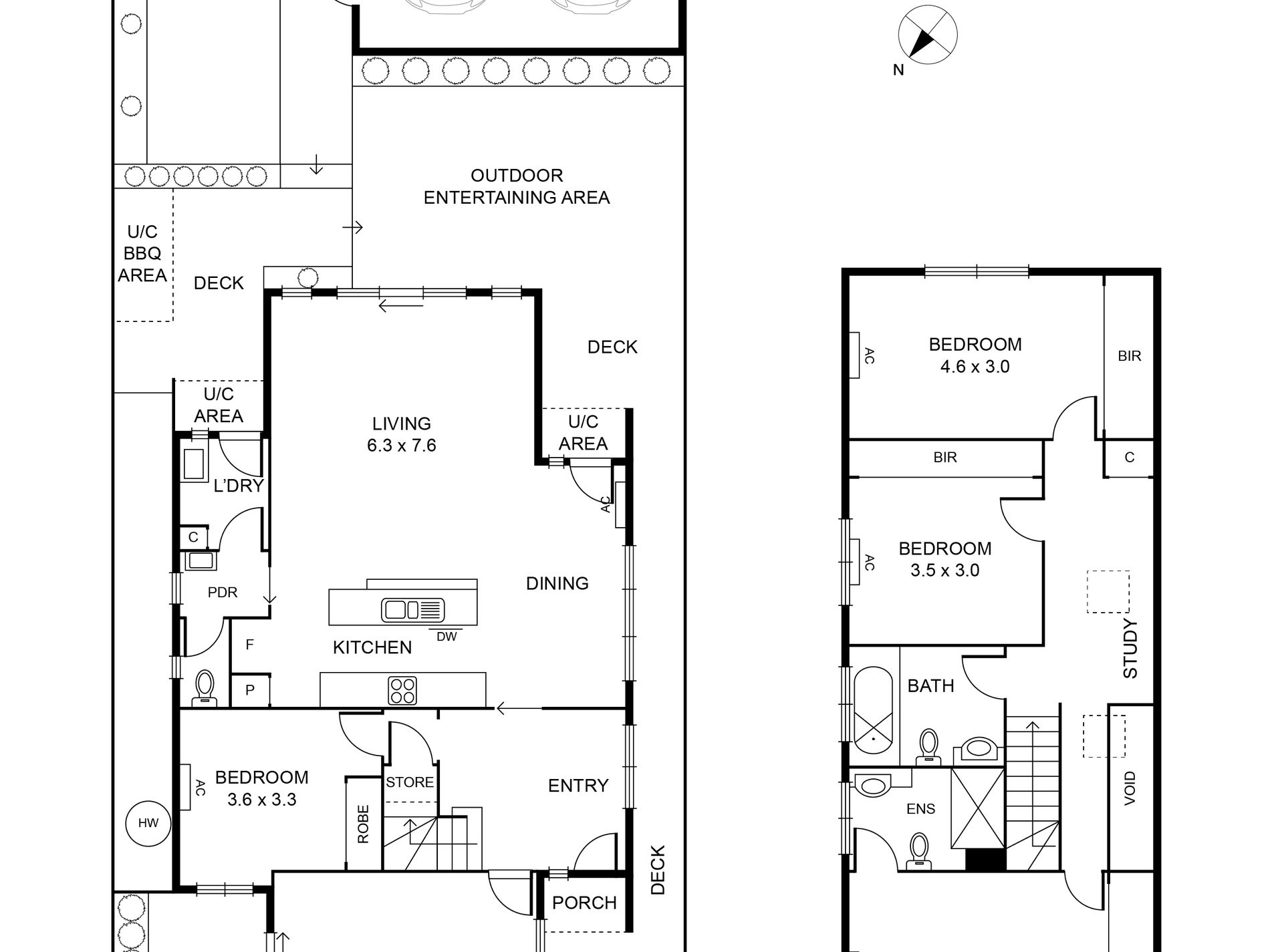
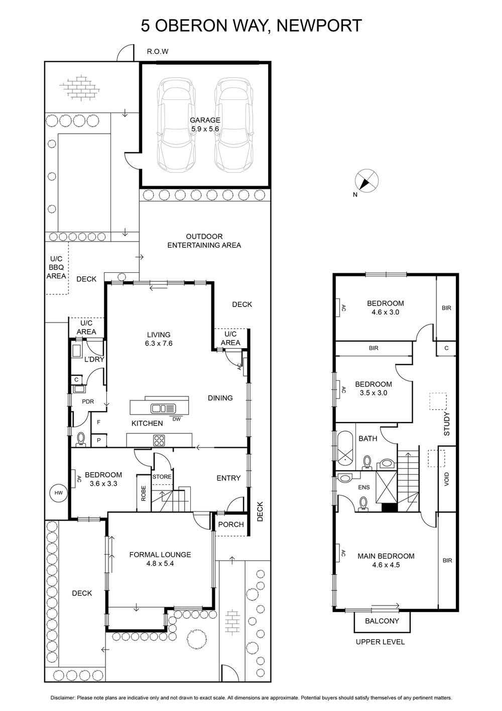
Welcome to 5 Oberon Way. A spacious free standing, four-bedroom family home perfectly positioned in the heart of the Williamstown Junction. This modern residence is designed for both comfort and lifestyle, offering a seamless blend of spacious indoor and outdoor living. With an inviting open-plan layout, a great entertaining backyard, and a community-focused location, this home is the ideal choice for families looking to grow in a friendly and connected neighbourhood. Surrounded by parks, cafes, shops, schools, and Newport train station/ public transport it delivers the best of convenience and community right at your doorstep.
• Expansive outdoor entertaining space
• Modern kitchen with ample storage
• Multiple living areas offer spacious and functional zones for growing families.
• Master bedroom with ensuite and built-in robes
• Double garage and two bathrooms
• Easy walking distance to parks, cafes, Newport shopping precinct, and Newport train station.



















































