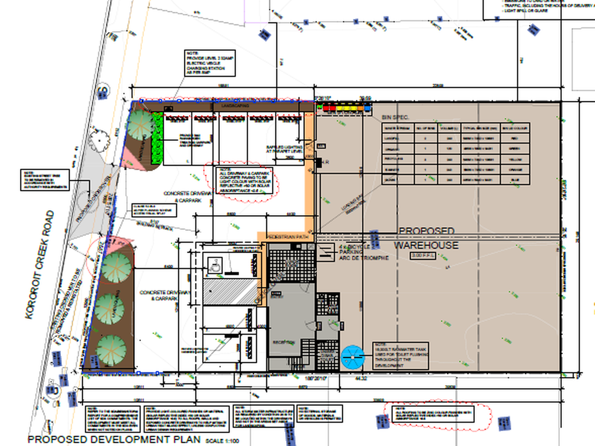
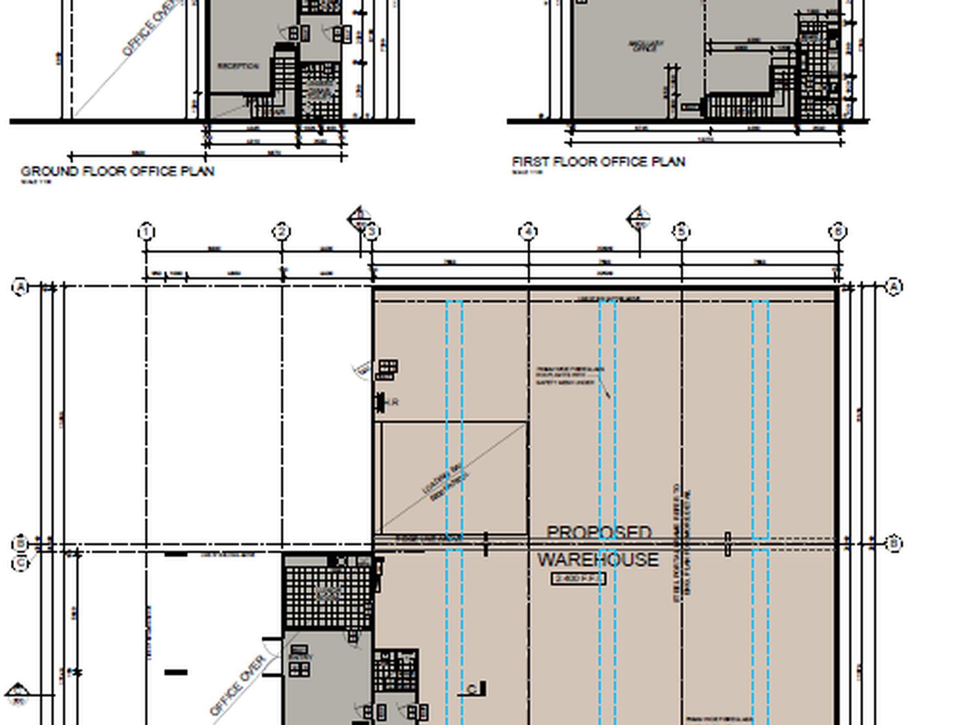
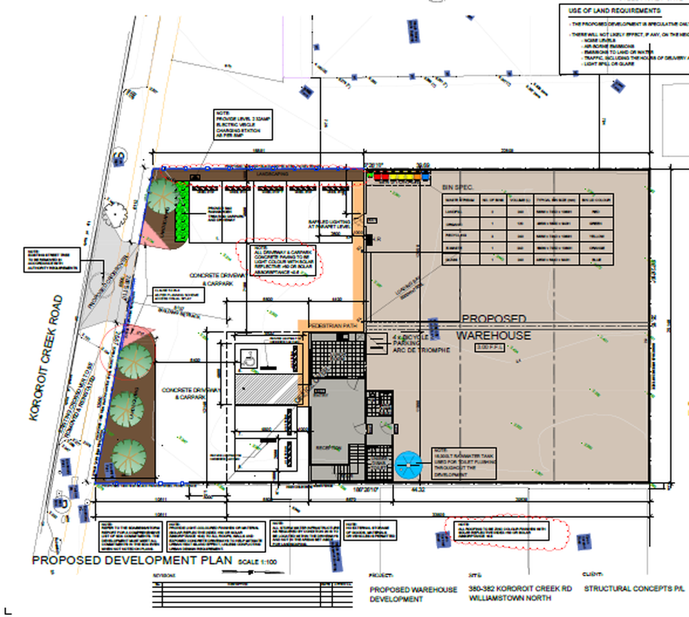
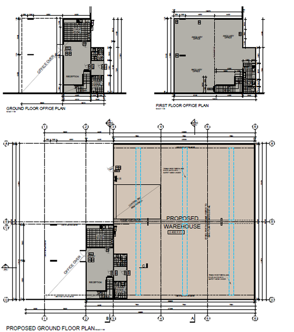
A brand-new office and warehouse with prime main road exposure is coming soon to Kororoit Creek Road. Offering exceptional flexibility for warehousing or retail, this property combines premium features with unbeatable accessibility just minutes from major arterials.
• Total building area: 778 sqm*
• High-clearance warehouse
• First-floor office/showroom
• Container-height roller door
• Secure yard with electric gate
• 8 on-site car spaces
• 3 km* to West Gate Freeway
• 800 m* to Millers Road
• Located in a thriving industrial precinct
Secure your interest now!





