Perfectly placed in one of Newport's hidden gems, this beautifully curated townhome delivers premium finishes and spacious living for growing families or professional couples looking for an elevated living experience. Sitting in the pleasantly quiet Ford Street, this townhome provides a unique sense of privacy and easy access to the heart of the Newport precinct.
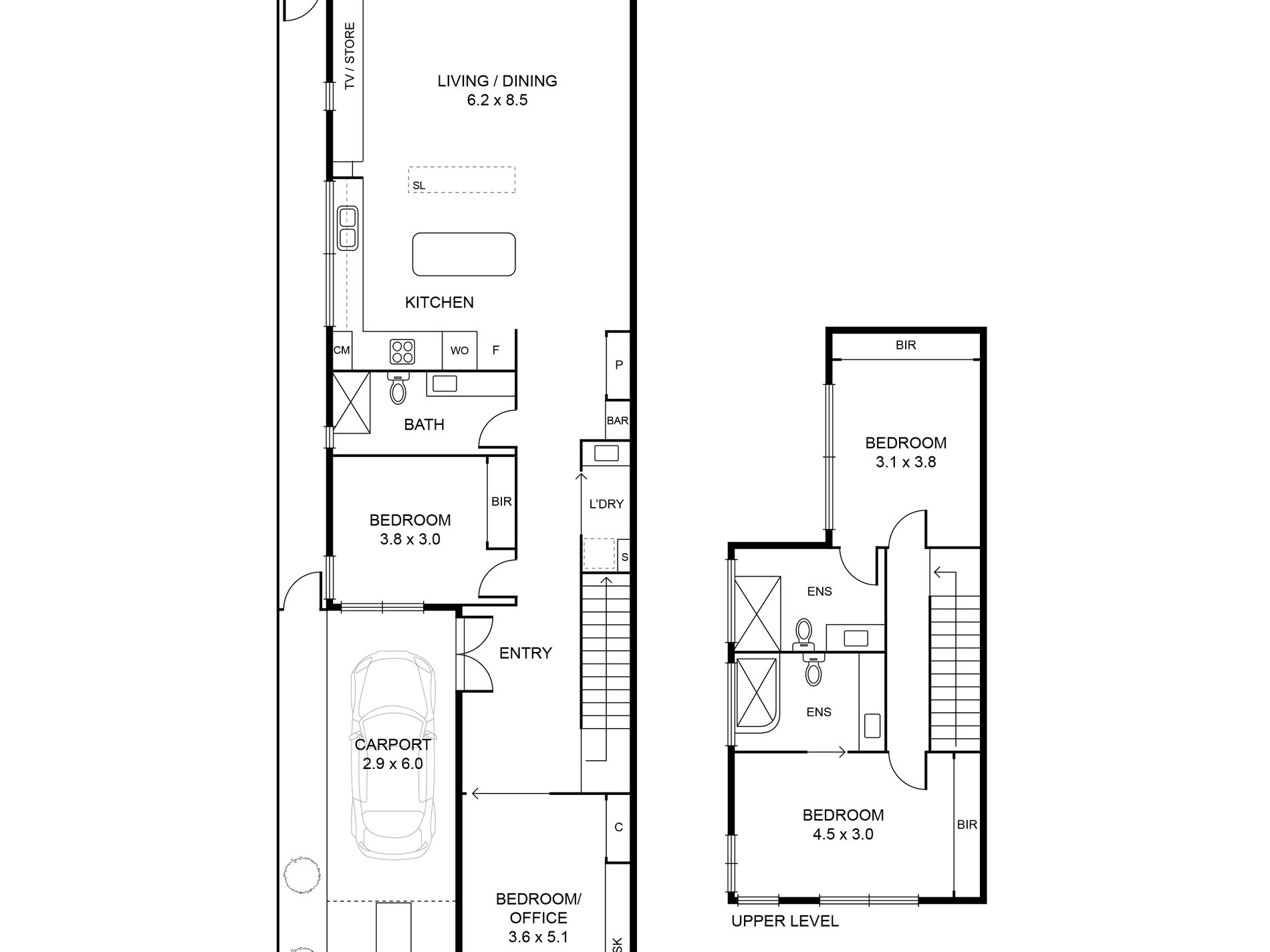
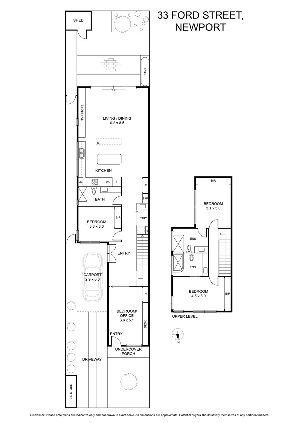
Featuring custom joinery, luxurious marble benchtops, and considered design choices throughout, this characteristically contemporary home is imbued with a sense of timelessness. Designed with flexibility in mind, the downstairs home office can be easily transformed into a fourth bedroom or second living area to suit changing lifestyles.
Enjoy endless light throughout the day and hosting guests in the expansive living, dining, and kitchen area. With its luxury, high quality finishes and thoughtfully designed floorplan, this townhome is truly greater than the sum of its parts. You're already home, here.
• Curated, interior-designed townhome
• Up to four bedrooms & three bathrooms
• Tactile elements including luxury European Oak flooring on ground floor, and plush wool carpet upstairs
• Upstairs bedrooms feature their own ensuites and custom built-in robes
• Luxurious marble benchtops throughout the kitchen, bathrooms, and laundry
• Large open-plan kitchen, living, and dining area perfect for entertaining appointed with a large skylight
• Generous joinery throughout including home office, hallway wall panelling, and entertainment unit
• Grand vaulted ceiling in home office
• Miele appliances, featuring an integrated dishwasher
• Zoned ducted heating / cooling
• Feature wall, track, and pendant lighting
• 10-minute walk to Newport Train Station
• Desirable street appeal
• Triple driveway with carport
Features
- Air Conditioning
- Built-in Wardrobes



















































