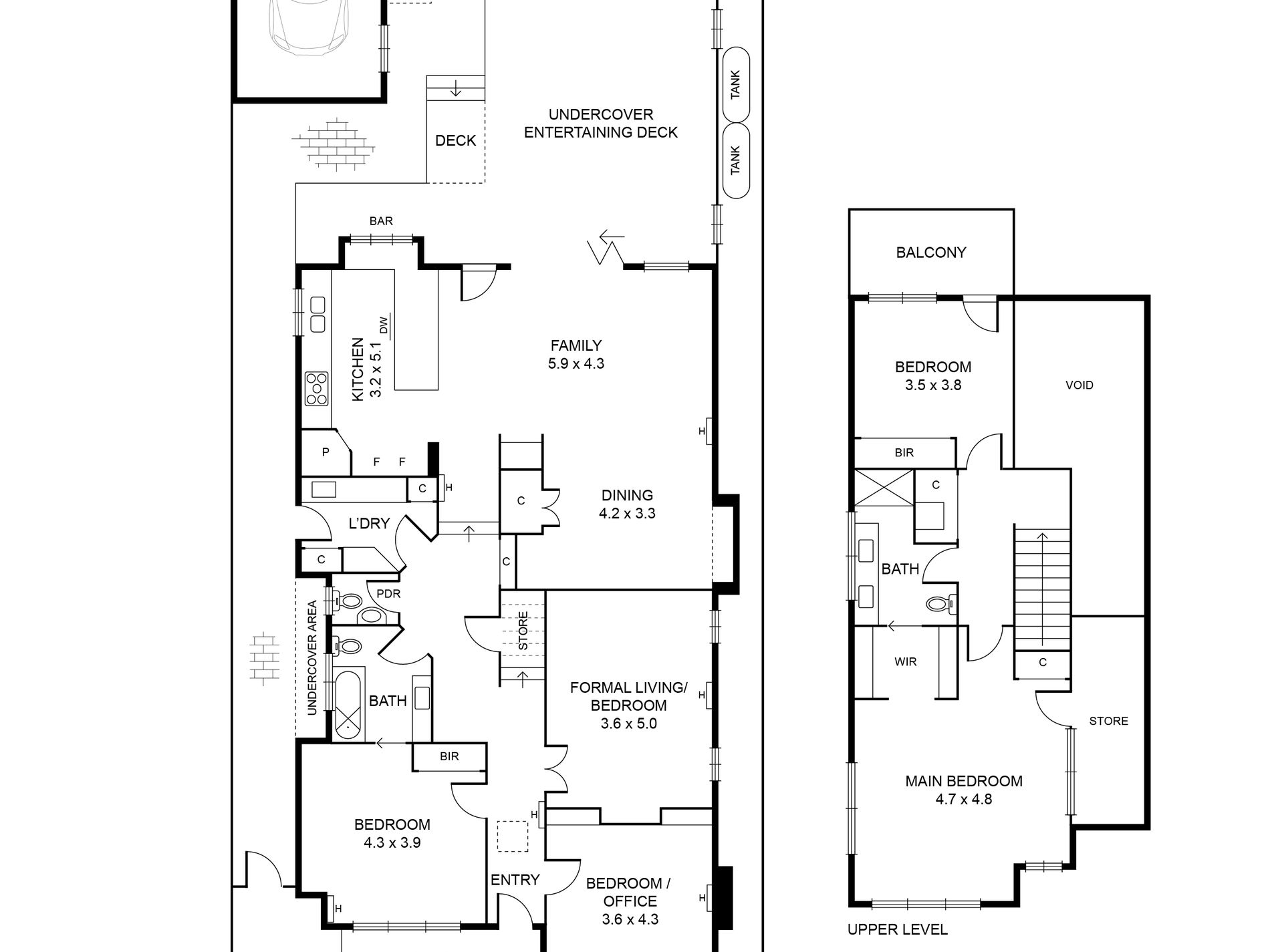
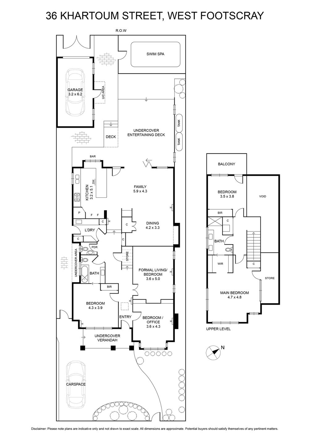
Behind its charming period façade, this beautifully renovated early 1900s residence offers a rare chance to secure a slice of West Footscray's history while enjoying all the comforts of contemporary family living. Carefully updated with respect for its heritage details, the home strikes the perfect balance between timeless elegance and everyday functionality.
• Four bedrooms and three bathrooms, ideal for growing families
• Flexible fifth bedroom or additional living space
• Light-filled open-plan kitchen and dining, flowing to outdoor entertaining through bi-fold doors
• Main bedroom with walk-in robe and full ensuite
• Hydronic heating throughout for year-round comfort
• Lock-up garage with rear ROW access plus an abundance of storage
• Family-friendly location with Shorten Reserve and Martin Reserve Dog Park at the end of the street
• Easy stroll to Footscray West Primary, West Footscray Station and the Barkly Village
• Just moments from Melbourne's CBD
• Other features include 17 solar panels, grey water system, all bedrooms have cable internet and wi-fi via fibre to the home, ducted vacuum throughout the home
This is a home where history, lifestyle and convenience converge - ready for its next chapter with a new family.





































