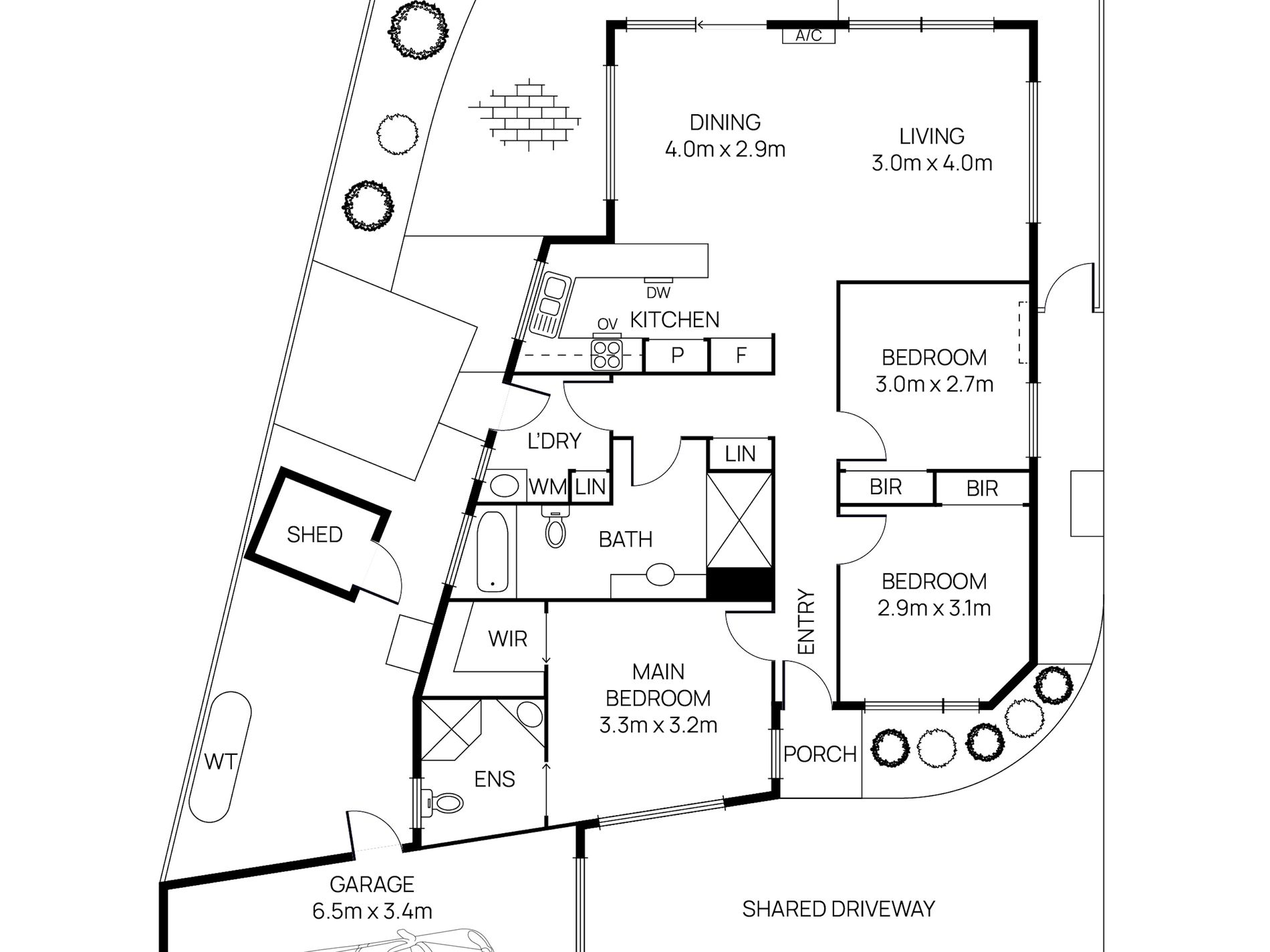
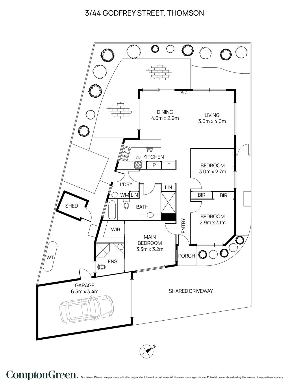
Privately positioned at the rear of a quiet complex, this 3 bedroom home offers a stylish and low-maintenance lifestyle in one of Geelong's most connected pockets.
Step inside to discover a bright, open-plan living and dining area with split-system air conditioning, ducted heating, and hybrid floorboards throughout. The modern kitchen is well-equipped with a gas cooktop, electric oven, dishwasher, and plenty of storage-perfect for everyday living or entertaining.
The master bedroom at the front of the home features a walk-in robe and ensuite, while the two additional bedrooms include built-in robes and enjoy natural light. A spacious central bathroom with both shower and bath, a separate laundry, and a private paved courtyard complete the picture.
Built in 2011, this home also includes a single lock-up garage with internal access and downlights throughout for a contemporary finish.
Location Perks:
Living here means you're just moments from:
• South Geelong Train Station, offering direct V/Line services to Melbourne, Warrnambool and beyond
• Bellarine Village Shopping Centre, with supermarkets, cafés and health services
• Frequent bus routes (including Geelong line 30) connecting you to the CBD, University Hospital and more
• Gordon TAFE East Geelong campus, ideal for students or staff
• University Hospital Geelong, just minutes away
• A selection of top local schools including Tate Street Primary, St Margaret's and East Geelong Primary
• Rental returns $430-$450/pw
Whether you're a first home buyer, downsizer or investor, this townhouse delivers the perfect blend of comfort, style and location.























