Custom designed by award-winning Bild Architecture (of Grand Designs Australia acclaim), this exceptional two-storey family home sets a new benchmark for luxury and liveability in the Inner West. Behind its charming period façade, the residence seamlessly blends heritage character with contemporary design, showcasing meticulous attention to detail and premium finishes throughout.
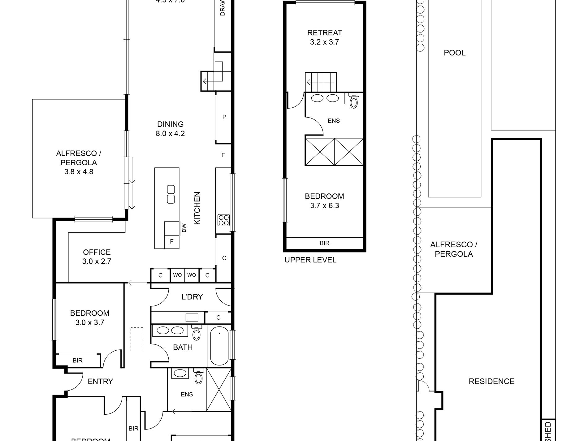
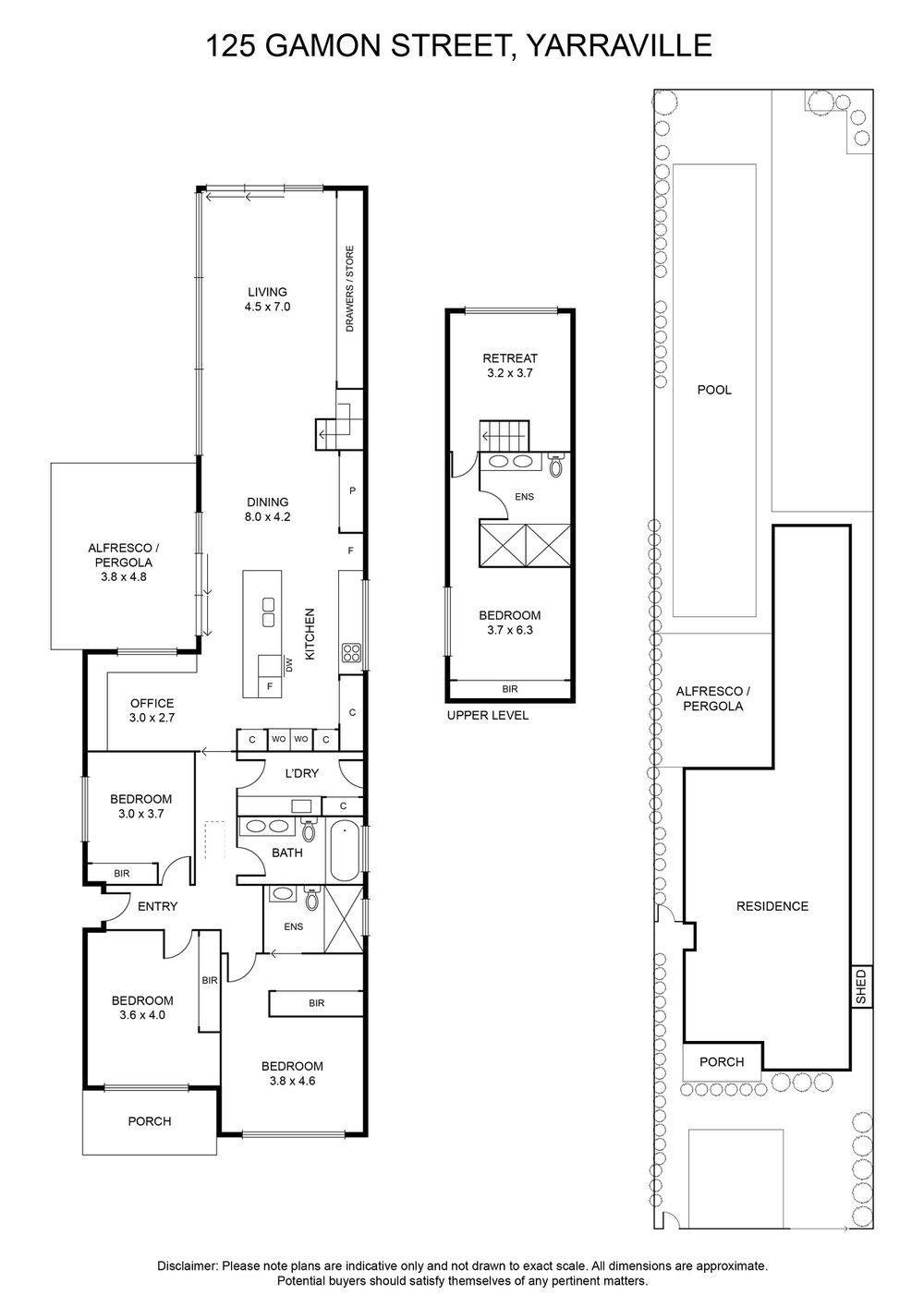
- A flexible family-friendly floorplan offers expansive open-plan living with heated polished concrete floors overlooking pool and garden
- Four bedrooms over two levels including two optional master suites and a dedicated home office
- Designer kitchen with premium appliances, custom Blackbutt joinery and stone bench tops
- Three luxurious bathrooms with Italian terrazzo, plus zoned heating and cooling throughout
- Landscaped gardens, expansive lawns 20m heated lap pool, undercover entertaining and off street parking
- A short walk to Yarraville Village, train station, shops, restaurants and Sun Theatre, zoned to Yarraville West Primary School
Register your interest to inspect.
Features
- Air Conditioning
- Ducted Heating
- Swimming Pool - In Ground
- Secure Parking
- Built-in Wardrobes
- Dishwasher
- Study







































