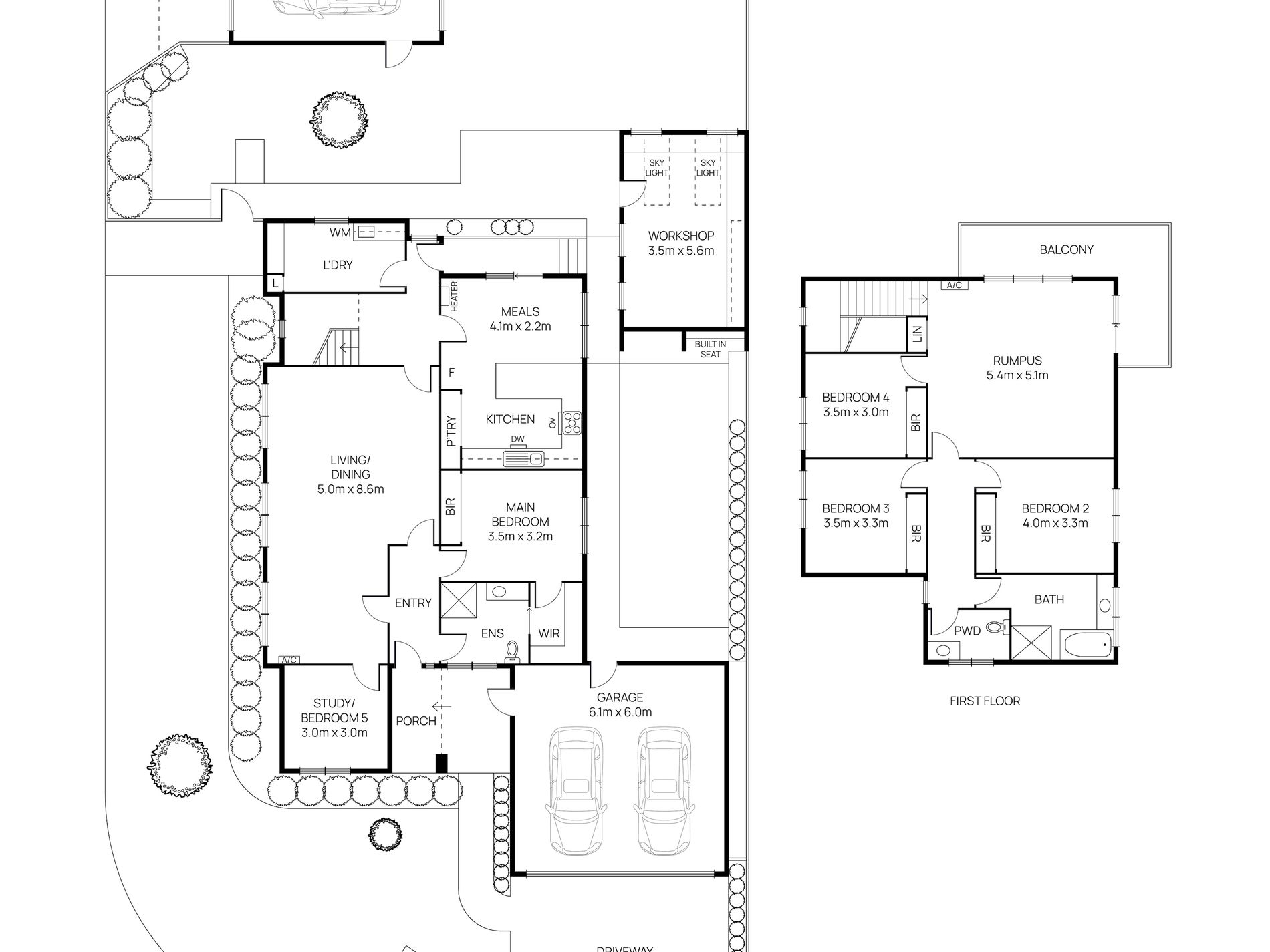
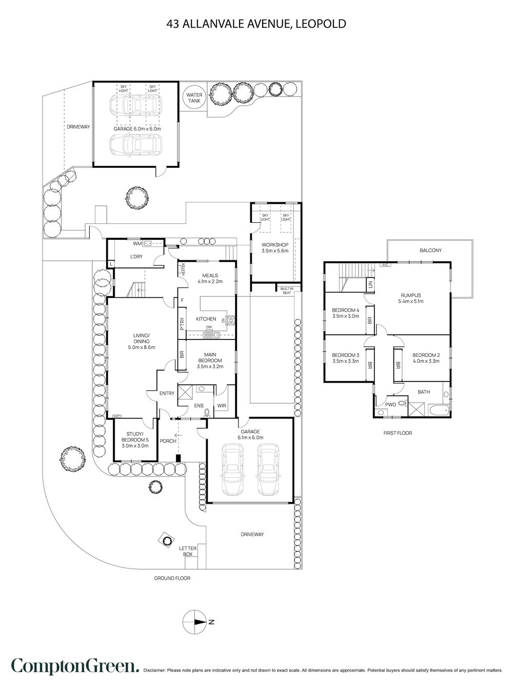
Set on a generous 648m² corner block, this solid double-storey home delivers exceptional family space with five bedrooms, two expansive living areas, and a large kitchen/dining zone at the heart of the home. The upstairs balcony offers an elevated outlook with glimpses toward Geelong and Corio Bay, complemented by the suburb's easy access to jetties and waterfront recreation just a short drive away. Enjoy year-round comfort with air-conditioning in both living areas, excellent storage, and outstanding car accommodation with two double garages plus a workshop.
Positioned moments from Gateway Plaza, local schools including Leopold Primary School, and within quick reach of the Bellarine's beaches, this home blends space, convenience and lifestyle appeal in a thriving pocket of Leopold.
Key Features:
• Large double-storey home on 648m² corner allotment
• Five bedrooms (four with BIR/WIR) + study / 5th bedroom
• Two generous living zones, both with air conditioning
• Spacious kitchen and dining area
• Two bathrooms + large separate laundry
• Upper-level balcony with elevated outlook toward Geelong & Corio Bay
• Two double garages = four secure parking spaces
• Workshop for storage or hobby use
• Solid 1970s construction with scope to update
• Close to Gateway Plaza, Leopold Primary School & Bunnings, local parks & shops
• 15 mins to Geelong CBD, 20 mins to Portarlington/Bellarine Beaches
Features
- Balcony
- Fully Fenced
- Secure Parking
- Built-in Wardrobes
- Rumpus Room
- Workshop
- Dishwasher
- Study
- Water Tank





















